Alan Duncan Kobayashi
Fireplace03_DSC_1353.jpg

Waterloo Row House

as BoyashiMade

Waterloo, ON. 2017-2018. | Completed

1960s modernist row house is completely gutted. The floor plan is opened up for a more fluid kitchen and living space.

A central fireplace divides Living and Dining but maintains a visual and material connection.

20171007_100607.jpg
Demolition Plan (above) & Proposed (below)

Demolition Plan (above) & Proposed (below)

Plan_Proposed.jpg
Kitchen Concept

Kitchen Concept

Through construction

Through construction

... and completion!

... and completion!

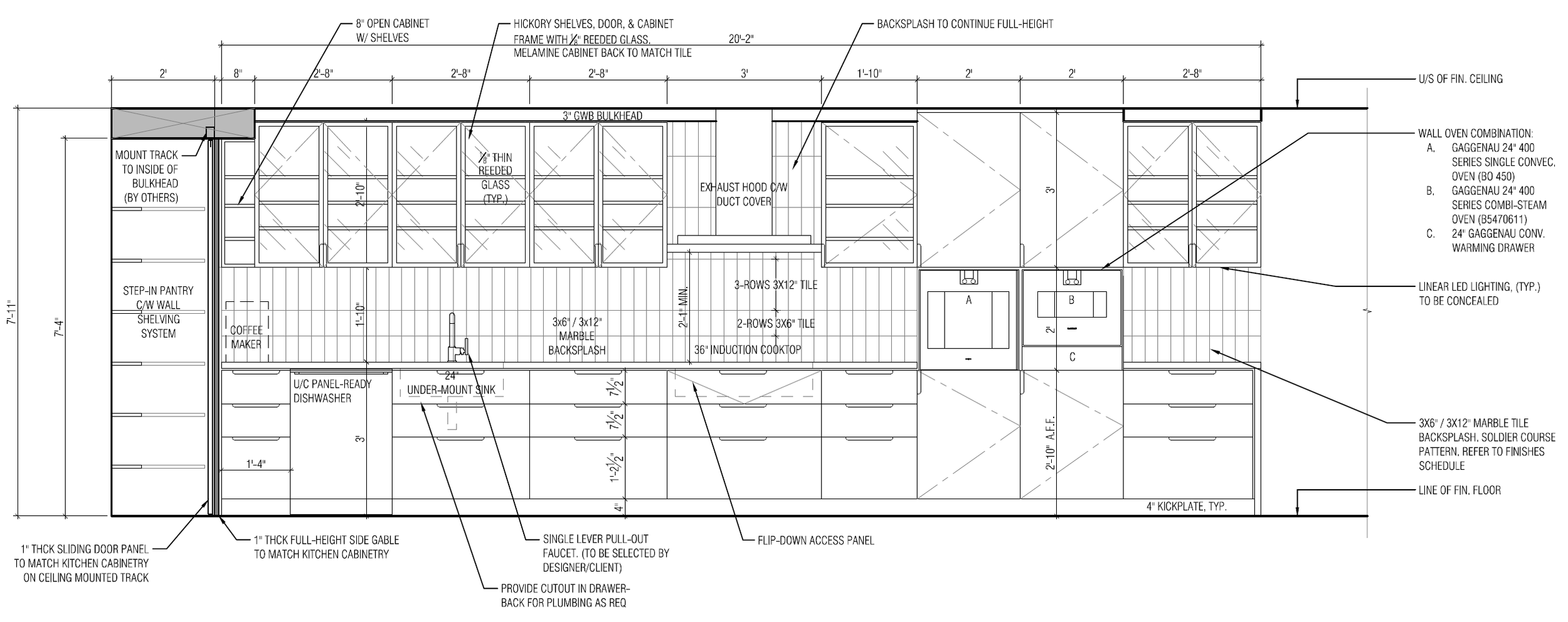
Detailed Millwork Package

Detailed Millwork Package

 Hidden walk-in Pantry

Hidden walk-in Pantry

Capture - kitchen elev.PNG
 Island Prep sink

Island Prep sink

Before

Before

... and after

... and after

The Fireplace...

The Fireplace...

Capture - fireplace.PNG
 The existing single sided fireplace transforms into a modern feature, and a visual anchor in the new layout.

The existing single sided fireplace transforms into a modern feature, and a visual anchor in the new layout.

20180506_155604_HDR.jpg
Fireplace03_DSC_1353.jpg